Osoba kontaktowa
Dr. Cornelia Koronakis
Dr. Cornelia Koronakis
Doradca ds. nieruchomości Sprzedaż nieruchomości
089 - 340 823-546
Pokój
1,5
Powierzchnia mieszkalna ok.
57 m²
Cena zakupu
€ 699 000,-
Komisja
2,975% w tym 19% VAT
Lokalizacja
80639 München

FRIENDS TOWER - Lifestyle living - wynajęty na czas określony


Identyfikator:
70313
Typ obiektu:
Apartment
Powierzchnia mieszkalna ok.:
57 m²
Rok budowy:
2016
Zasiłek mieszkaniowy:
487 €
Stan:
Dobrze utrzymany
Podnoszenie:
Tak
Łazienka:
1
WC dla gości:
Tak
Piwnica:
Tak
Wyposażona kuchnia:
Tak
Podłoga:
5
Wykładzina podłogowa:
Parkiet, Płytki

Komisja

Prowizja kupującego: 2,975% w tym 19% VAT.

Najważniejsze wydarzenia


  • Jasne mieszkanie od strony południowej
  • Wysokość sufitu ok. 2,80 m
  • Unikalna koncepcja mieszkania

Opis


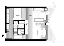
Stylowe, wychodzące na południe 1,5-pokojowe mieszkanie na 5. piętrze FRIENDS TOWER oferuje nowoczesną, jasną koncepcję pomieszczeń na ok. 57 m².

Wysokiej jakości kuchnia stolarska jest płynnie zintegrowana z salonem i jadalnią, a wnęka sypialna oddzielona zasłonami zapewnia prywatność. Duże panoramiczne okna z potrójnymi szybami izolacyjnymi i elektrycznym systemem zaciemnienia zapewniają mnóstwo naturalnego światła i przyjemny klimat w pomieszczeniach. Eleganckie detale, takie jak parkiet, ogrzewanie podłogowe i stylowa łazienka uzupełniają wnętrze. Wysokie sufity o wysokości ok. 2,80 m podkreślają wrażenie przestronności. W piwnicy znajduje się również praktyczny schowek.

FRIENDS TOWER oferuje ekskluzywne udogodnienia wspólne, takie jak taras na dachu z widokiem na Alpy, strefę fitness i salon kuchenny na prywatne imprezy. Dodatkową wygodę zapewnia usługa konsjerża.

To mieszkanie jest idealne dla każdego, kto szuka wyjątkowego mieszkania w Monachium.

Miesięczna opłata za miejsce parkingowe wynosi obecnie 59,00 €.

CP mieszkanie 699.000 € + CP pojedyncze miejsce parkingowe 40.000 € = łącznie 739.000 €

Sprzęt



    Kuchnia:
    • Zintegrowana, wysokiej jakości wyposażona kuchnia - stolarka firmy Holzrausch
    • Wentylator wyciągowy, piekarnik elektryczny, płyta indukcyjna, lodówka, zmywarka

    Część dzienna/jadalnia:
    • Telewizor z płaskim ekranem
    • Oddzielna część sypialna zapewniająca spokojny wypoczynek
    • Panoramiczne okna z potrójnymi szybami izolacyjnymi i dźwiękoszczelnymi oraz elektrycznym systemem zaciemnienia
    • Parkiet i ogrzewanie podłogowe zapewniające przyjemny klimat w mieszkaniu
    • Pralko-suszarka

    Łazienka:
  • Ekskluzywna łazienka z kabiną prysznicową ze strumieniem deszczowym i oddzielną toaletą dla gości


  • Komfort i styl życia w FRIENDS TOWER:
    • Taras na dachu na 15. piętrze z zapierającym dech w piersiach widokiem 360° na Monachium i Alpy.
    • Strefa fitness
    • Salon kuchenny z możliwością rezerwacji na towarzyskie wieczory z przyjaciółmi
    • Duże, zamykane pomieszczenia na rowery
    • Miejsce do przechowywania w piwnicy
    • Usługa konsjerża w foyer z odbiorem paczek, serwisem koszul i innymi usługami
    • Szybki Internet o przepustowości 1000 MBit

    Całe umeblowanie z wyposażoną kuchnią i sprzętem, takim jak sofa, telewizor, sztućce itp. są wliczone w cenę zakupu. Szczegółowa lista wyposażenia zostanie dostarczona przy zakupie.

    Lokalizacja


    Neuhausen to jedna z najbardziej poszukiwanych dzielnic mieszkaniowych w Monachium, łącząca centralną lokalizację z dużą ilością zieleni. Okolica zachwyca wspaniałym pałacem Nymphenburg i jego parkami, a także tętniącym życiem zgiełkiem wokół Rotkreuzplatz. Oferowana nieruchomość znajduje się bezpośrednio przy Hirschgarten, popularnym terenie rekreacyjnym.

    Infrastruktura jest doskonała: w pobliskim Hirschgarten Forum znajdują się supermarkety, targ ekologiczny, apteka, pralnia chemiczna, poczta i restauracje. Centrum medyczne zapewnia optymalną opiekę medyczną. Nymphenburg Strasse oferuje liczne możliwości zakupów, takie jak Feinkost Käfer, butiki, kawiarnie i wysokiej jakości restauracje.

    FRIENDS Tower ma doskonałe połączenia komunikacyjne: Stacja S-Bahn "Hirschgarten" (główna linia) oferuje bezpośrednie połączenie z lotniskiem, a linie tramwajowe 16 i 17 zapewniają dodatkową wygodę. Do głównego dworca kolejowego można dojść w 5 minut, a do Marienplatz w 8 minut. Mittlerer Ring zapewnia szybki dostęp do autostrad.

    W okolicy znajduje się wiele atrakcji rekreacyjnych: ESV oferuje szeroki program sportowy, a Body & Soul Center zaprasza na relaks ze ścianką wspinaczkową, 25-metrowym basenem sportowym i strefą wellness. Zielone oazy, takie jak Ogród Angielski, Park Pałacowy Nymphenburg, Hirschgarten i Park Olimpijski oferują rekreację i wiele możliwości spędzania wolnego czasu.

    Dane dotyczące energii


    Typ ogrzewania:
    Ogrzewanie podłogowe
    Klasa efektywności energetycznej:
    B
    Wskaźnik zużycia energii:
    60 kWh/(m²*a)
    Główne źródła energii:
    Ogrzewanie miejskie
    Typ certyfikatu energetycznego:
    Certyfikat zużycia
    Rok budowy:
    2016

    Różne


    Mieszkanie jest obecnie wynajmowane na czas określony za czynsz w wysokości 2 390 EUR miesięcznie (w tym media, energia elektryczna i zryczałtowana stawka internetowa) do 28 lutego 2026 r. włącznie. Idealnie nadaje się jako inwestycja kapitałowa lub do zamieszkania przez właściciela. Chętnie odpowiemy na pytania podczas osobistego spotkania.

    Jako wiodąca agencja mieszkań tymczasowych, Mr. Lodge jest również do dyspozycji nowych właścicieli lub inwestorów w zakresie doradztwa, wynajmu i usług związanych z nieruchomością.

    Mr. Lodge oferuje tę nieruchomość na zasadzie wyłącznego mandatu.

    Należy pamiętać, że cyfrowe exposé ma na celu zapewnienie wstępnego przeglądu, a wszystkie szczegóły opierają się na informacjach dostarczonych przez właściciela lub klienta i nie ponosimy za to żadnej odpowiedzialności.

    Przetłumaczone z DeepL

    Poproś o exposé


    Mr. Lodge GmbH przetwarza przekazane przez Państwa dane osobowe zgodnie z oświadczeniem o ochronie danych Mr. Lodge.

    Cookie notice
    This website uses cookies to personalize content, customize and measure advertising, and provide a safe experience. By clicking the "Allow all and continue" button, you consent to the collection of data via cookies.
    Please enable cookies in your browser settings!