Много хубаво обзавеждане Двуетажна къща в Ottobrunn
We are proud to present this beautiful semi-detached house, nestled in a sunny plot of approx. 300 m2 at the end of a private driveway in a very quiet location. The main rooms face south and east and “live” from the close connection with the garden and the wonderful view of the greenery.
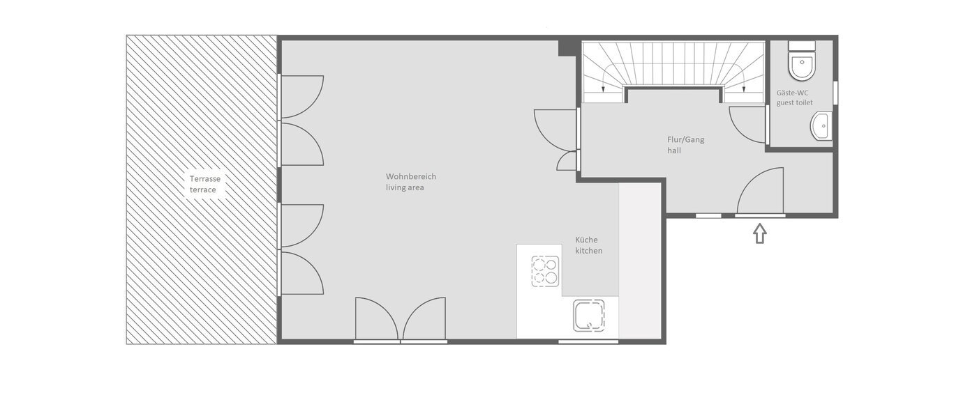
The spacious floor plan impresses with its linear and bright layout of the living spaces. On approx. 40m2 on the ground floor, there is a bright living/dining room with an open kitchen and cozy fireplace. The large window fronts allow an unobstructed view of the beautifully grown garden. The high-quality kitchen with ceramic worktop is fully equipped with all appliances and was newly installed in October 2023. The spacious entrance area with the staircase separated from the living room is well designed. Behind a sliding mirror door, there is a practical wardrobe that also provides plenty of storage space.
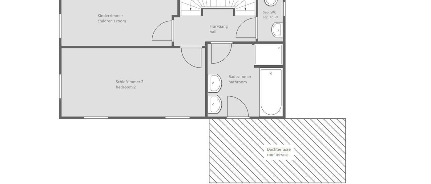
On the upper floor, there are two bedrooms, a large bathroom and a separate toilet. The tastefully designed bathroom is equipped with a large shower, bathtub, towel radiator and a custom-made base cabinet on which the two washbasins are located. The attic currently houses the master bedroom with an adjoining walk-in closet. A home office has also been created here.
The approx. 25m2 hobby room in the basement, which is bright thanks to 2 generous light wells, offers interesting options for use. A utility room with a washing machine and dryer is also available in the basement. A pantry equipped with another refrigerator and a freezer is right next to it. The cozy terrace with Bagkirai floorboards, the beautifully established garden, and the large carport that can accommodate and charge two vehicles, round off this attractive property. A very large tool shed, in which all utensils such as lawn mowers etc. can be conveniently stored, can be found next to the carport.
The municipality of Ottobrunn, with a population of approx. 21,000, is located on the southeastern edge of Munich, just 500 meters from the city limits. All shops for daily needs and schools are in the immediate vicinity. The property offered is close to the town center with a modern cultural center and numerous leisure facilities such as sports facilities, a cinema and restaurants. The new TUM School of Aeronautics further enhances the location. The train station is a 5-minute walk away, and the A8 motorway provides quick access to the Alps.
Оборудване:
Година на построяване:
2009
Стая:
Дневна/трапезария с диван и комплект за хранене
Първа спалня с двойно легло 200 x 200 cm
2-ра спалня с френско легло
Детска стая
Гардероб
Баня с душ и вана
Тоалетна за гости
Отделна тоалетна
Първа спалня с двойно легло 200 x 200 cm
2-ра спалня с френско легло
Детска стая
Гардероб
Баня с душ и вана
Тоалетна за гости
Отделна тоалетна
Floor coverings:
Паркетни настилки, Под с плочки, Подово отопление
Обзавеждане:
2-4 години, красиво и светло обзавеждане, много добър, високо качество
Kitchen:
Кухня, отворена към дневната зона, визуално разделена от плот, с прозорец, Индукционен плот, Електрическа фурна, Хладилник с фризерно отделение, Съдомиялна машина, Микровълнова печка, dinnerware, kitchen utensils and equipment provided
Items:
Перална машина в мазето
Сушилня в мазето
Сателитна телевизия, два телевизора с плосък екран
bed linen and towels included
incl. iron, ironing board and vacuum cleaner
Сушилня в мазето
Сателитна телевизия, два телевизора с плосък екран
bed linen and towels included
incl. iron, ironing board and vacuum cleaner
Internet:
Интернет на фиксирана цена (до 50 Mbit/s)
Специални оферти:
Светлинно наводнена къща
Тераса, Покривна тераса
Градина
Камина, Пространство за домашен офис, Складово помещение, Изба
Тераса, Покривна тераса
Градина
Камина, Пространство за домашен офис, Складово помещение, Изба
Паркинг:
Навес за автомобили
с възможност за зареждане за електронна мобилност
Разходи, включени в наема
с възможност за зареждане за електронна мобилност
Разходи, включени в наема
Относно наемната цена:
Включва.: Допълнителни разходи, Интернет, Навес за автомобили
Плюс.: Електричество, Разходи за отопление, Вода
Плюс.: Електричество, Разходи за отопление, Вода
Security deposit:
3 months‘ rent
Лицензионна такса за излъчване:
Такса за излъчване за обществените радио- и телевизионни организации. Месечната лицензионна такса се заплаща от наемателя директно на ARD ZDF Deutschlandradio, Beitragsservice и понастоящем възлиза на 18,36 евро/месец - не е включена в наема, освен ако не е посочено друго: повече информация
Издава се потвърждение за местоживеене от наемодателя (WGB)
Ако сте новодошли в Мюнхен, трябва да се регистрирате в службата за регистрация в рамките на 2 седмици след като се настаните. За целта е необходимо потвърждение от наемодателя за пребиваване.
Обществен транспорт
Neighborhood
Ottobrunn
Shopping:
Аптека, Baker, Месарница, Аптека, Магазин за биологични продукти, Търговец на плодове и зеленчуци, Търговец на дребно на напитки, Магазин за цветя, Почистване, Супермаркет, Седмичен пазар
Храни и напитки:
Ресторанти, Пицарии, Кафенета, Стендални кафенета, Бирени градини, Сладоледен салон, Кино
Energy Performance Certificate:
Year of construction: 2009
Type of Energy Performance Certificate: Verbrauchsausweis
Main energy sources: Gas
Energy efficiency rating: A
Energy consumption value: 46,50 kWh/(m²*a)
Type of Energy Performance Certificate: Verbrauchsausweis
Main energy sources: Gas
Energy efficiency rating: A
Energy consumption value: 46,50 kWh/(m²*a)
