Glockenbachviertel: красива 2-кімнатна квартира

Geyerstraße
80469 München
ID 11255
€ 2.350,-
в т.ч.: Додаткові витрати, Електрика, Опалення та вода, Вода, Інтернет

2 Кімната
Приблизно. 60 m²
Підлога 1
Доступно за посиланням
на даний момент за 6-24 Місяці
Мінімальний термін оренди
6 Місяці
Кількість осіб
підходить для 1 людини
Плата за послугу
Ні.
Обмеження
тільки для некурців, no pets

Відеоекскурсія

Відвідайте сайт
і зручно огляньте своє нове житло з будь-якого місця.

Відео

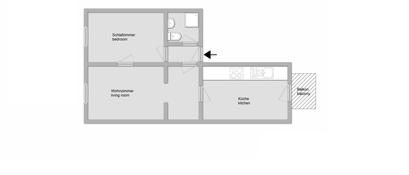
Чарівна 2-кімнатна квартира в старому будинку розташована в популярному Glockenbachviertel. У вітальні є великий кутовий диван і прохід до спальні, яка має двоспальне ліжко і шафу. Окрема кухня з вікном задовольнить будь-які побажання. Крім того, кухня має обідню зону, яка також підходить для роботи вдома. Світла ванна кімната, облицьована плиткою, обладнана душовою кабіною, рушникосушкою та дзеркальною шафою. Невеликим акцентом квартири є балкон, який запрошує насолодитися сонцем. Незважаючи на центральне розташування, тут є безліч тихих місць для відпочинку, а безпосередня близькість до річки Ізар запрошує до пробіжок та прогулянок.

Спорядження:

Інтернет
Телебачення
Гувер.
Пральна машина
Сушарка для білизни
Посудомийна машина
Рушники
Постільна білизна
Фен
Залізо
Підвал.
Гараж.
Підйом!
Балкон
Тераса

Інформація

Підлога
1st - З підйомником
Рік побудови
turn of the century building
Кімната
Вітальня зі шкіряним диваном
Спальня з двоспальним ліжком 200 х 200 см
Ванна кімната з душем
Floor coverings
Паркетна підлога, Кахельна підлога
Меблювання
як новенький, красиво і яскраво мебльовані, Дуже добре.
Kitchen
Дуже добре. Кухня-вітальня, з вікном, Керамічна варильна поверхня, Витяжний вентилятор, Електрична духовка, Комбінація холодильник/морозильна камера, Посудомийна машина, Обідній стіл, dinnerware, kitchen utensils and equipment provided
Items
Пральна машина в квартирі
Телевізор з плоским екраном
bed linen and towels included
incl. iron, ironing board and vacuum cleaner
Internet
БЕЗДРОТОВА ЛОКАЛЬНА МЕРЕЖА
Фіксований інтернет (зі швидкістю до 300 Мбіт/с)
Витрати, включені в орендну плату
Спеціальні пропозиції
Балкон
Підвал.
Про вартість оренди
Включно.: Додаткові витрати, Витрати на електроенергію до 100,- €/місяць, Витрати на опалення та гарячу воду до суми 150,- €/місяць, Вода, Інтернет
Security deposit
2 months rent
Плата за ліцензію на мовлення
Плата за мовлення для суспільних телерадіоорганізацій. Щомісячний ліцензійний збір сплачується орендарем безпосередньо ARD ZDF Deutschlandradio, Beitragsservice і наразі становить 18,36 євро/місяць - не входить до орендної плати, якщо не вказано інше: більше інформації
Energy Performance Certificate
Year of construction: 1900
Type of Energy Performance Certificate: Verbrauchsausweis
Main energy sources: Gas
Energy efficiency rating: C
Energy consumption value: 92,50 kWh/(m²*a)
Nicole Kaufmann

Nicole Kaufmann

Керівник групи з питань оренди нерухомості

Ще не знайшли підходящу квартиру?

Наша команда з оренди буде рада допомогти вам у пошуку. Просто заповніть нашу форму пошуку, і ми зв'яжемося з вами якомога швидше.

Зробити запит

Розташування об'єкта нерухомості

Geyerstraße

München Glockenbachviertel

  • very good living location
  • біля Ісару.
  • very quiet
  • Приблизно. 1,9 km південний захід від Zentrum
Більше про околиці
underground
Routes U1, U2 і U7, Station Fraunhoferstraße (10 хвилини пішки)
bus
Routes 132, 58, 68, N45 і X98, Station Baldeplatz (3 хвилини пішки)

Схожі квартири

Плоский з 2 Кімнати | Мюнхен-Glockenbachviertel | 9591
Відео
01.04.2026 за 6-36 Місяці
2 Кімната
50 m²
Мюнхен-Glockenbachviertel
2,250
€/місяць
Плоский з 2 Кімнати | Мюнхен-Ludwigsvorstadt | 14757
Квартира з обслуговуванням
на даний момент за 1-6 Місяці
2 Кімната
43 m²
Мюнхен-Ludwigsvorstadt
2,200
€/місяць
Мансардна квартира з 2 Кімнати | Мюнхен-Isarvorstadt | 14172
Відео
на даний момент за 6 Місяці
2 Кімната
94 m²
Мюнхен-Isarvorstadt
2,950
€/місяць
Плоский з 1 Кімната | Мюнхен-Glockenbachviertel | 5247
Відео
01.04.2026 за 6-36 Місяці
1 Кімната
53 m²
Мюнхен-Glockenbachviertel
1,750
€/місяць
Плоский з 1.5 Кімнати | Мюнхен-Ludwigsvorstadt | 11451
Відео
на даний момент за 6-24 Місяці
1.5 Кімната
43 m²
Мюнхен-Ludwigsvorstadt
1,900
€/місяць

Часті запитання

Наша послуга є безкоштовною для вас як орендаря. Після підписання договору ви сплачуєте орендодавцю щомісячну орендну плату та одноразовий депозит (зазвичай двомісячну орендну плату).

Якщо ви знайшли відповідну пропозицію на нашому сайті або хочете отримати від нас відповідні пропозиції, будь ласка, спочатку повністю заповніть нашу реєстраційну форму. Наші консультанти зв'яжуться з вами якнайшвидше, щоб обговорити подальші кроки. Ми будемо раді організувати перегляд на місці. Після того, як ви визначитеся з квартирою, ми обговоримо це з орендодавцем і складемо договір оренди після того, як ви його приймете.

Зазначений період оренди є обов'язковим. Якщо квартира пропонується, наприклад, на 1 червня, її не можна орендувати раніше - і, як правило, не набагато пізніше. Якщо ваш бажаний термін оренди відрізняється від запропонованого, будь ласка, повідомте про це консультанта. Якщо вказана фіксована дата закінчення оренди, то продовжити її неможливо. Якщо вказано змінний період оренди, то за необхідності з орендодавцем можна домовитися про невеликі відхилення.

Приватні орендарі квартир і будинків у Мюнхені зобов'язані укладати договори оренди не менше ніж на шість місяців. Місто Мюнхен вважає, що оренда на термін менше шести місяців є нецільовим використанням житлової площі, тому ми пропонуємо квартири та будинки тільки на термін від шести місяців і довше.<br />Комерційні орендарі, наприклад, квартири з обслуговуванням, у багатьох місцях не мають права здавати житло на термін більше шести місяців. Тому ми розрізняємо короткострокові та довгострокові пропозиції.<BR />У регіоні Tegernsee приватним орендарям також дозволено здавати житло на коротші терміни, і тому ми можемо запропонувати мебльовану оренду вже від одного місяця.

Якщо ви бажаєте особисто подивитися квартиру на місці, будь ласка, повідомте нам про це. Якщо квартира все ще здається в оренду, наші консультанти домовляться про зустріч з поточним орендарем. Якщо квартира вже звільнилася, зустріч зазвичай можна організувати в найкоротші терміни. Будь ласка, зверніть увагу, що квартиру зазвичай здають тому, хто першим візьме на себе зобов'язання про оренду. Тому не плануйте свої зустрічі занадто пізно, оскільки бажане житло може бути вже здане в оренду.

За бажанням ви можете переглянути наші об'єкти нерухомості віртуально за допомогою відеодзвінка. На нашому сайті ви знайдете високоякісні фотографії та відео об'єктів нерухомості, прилеглої території, а також додаткову детальну інформацію про кожен об'єкт.

Договір оренди укладається між орендарем та орендодавцем. У більшості випадків договір оренди складається Mr. Lodge - після консультацій з орендарем та орендодавцем - і надсилається обом сторонам для підписання.

Згідно з договором оренди, квартира має бути повернута професійно прибраною. Коли орендар виїжджає, проводиться комерційне фінальне прибирання, яке орендодавець доручає спеціалізованій компанії. Витрати розраховуються на основі часу та матеріалів і, як правило, оплачуються орендарем. Орендодавець отримує рахунок від клінінгової компанії і зараховує витрати з депозиту. Ретельне попереднє прибирання може знизити вартість комерційного клінінгу. Будь ласка, зверніться до нашого контрольного списку, щоб дізнатися, що входить у фінальне прибирання.

Cookie notice
This website uses cookies to personalize content, customize and measure advertising, and provide a safe experience. By clicking the "Allow all and continue" button, you consent to the collection of data via cookies.
Please enable cookies in your browser settings!