bohužel již není k dispozici

Idylický dvojdomek s rozsáhlým pozemkem

Walchstadter Höhe
82057 Icking
ID 14465
€ 3.400,-
včetně.: Vedlejší náklady, Internet, Přístřešek pro auto;
plus.: Elektřina, Vytápění, Voda

5 Pokoj
přibližně. 186 m²
přibližně. 1200 m²
K dispozici od
01.03.2026 do 31.08.2026
Minimální doba pronájmu
6 měsíce
Number of tenants
vhodné pro 6 osob
Poplatek za služby
Žádné
Omezení
pouze pro nekuřáky, Pets upon request

Bitte beachten Sie: dieses 5-Zimmer Haus steht nur maximal bis zum 31.August 2026 zur Verfügung (Stand 12.August 2025)

Vybavení:

Internet
Televize
Hoover
Pračka
Sušička prádla
Myčka nádobí
Ručníky
Ložní prádlo
Fén na vlasy
Iron
Sklep
Garáž
Výtah
Balkon
Terasa

Information

Rok výstavby
2017
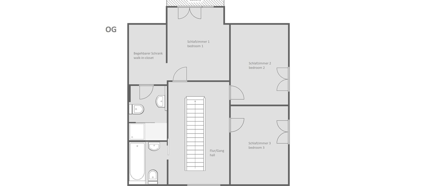
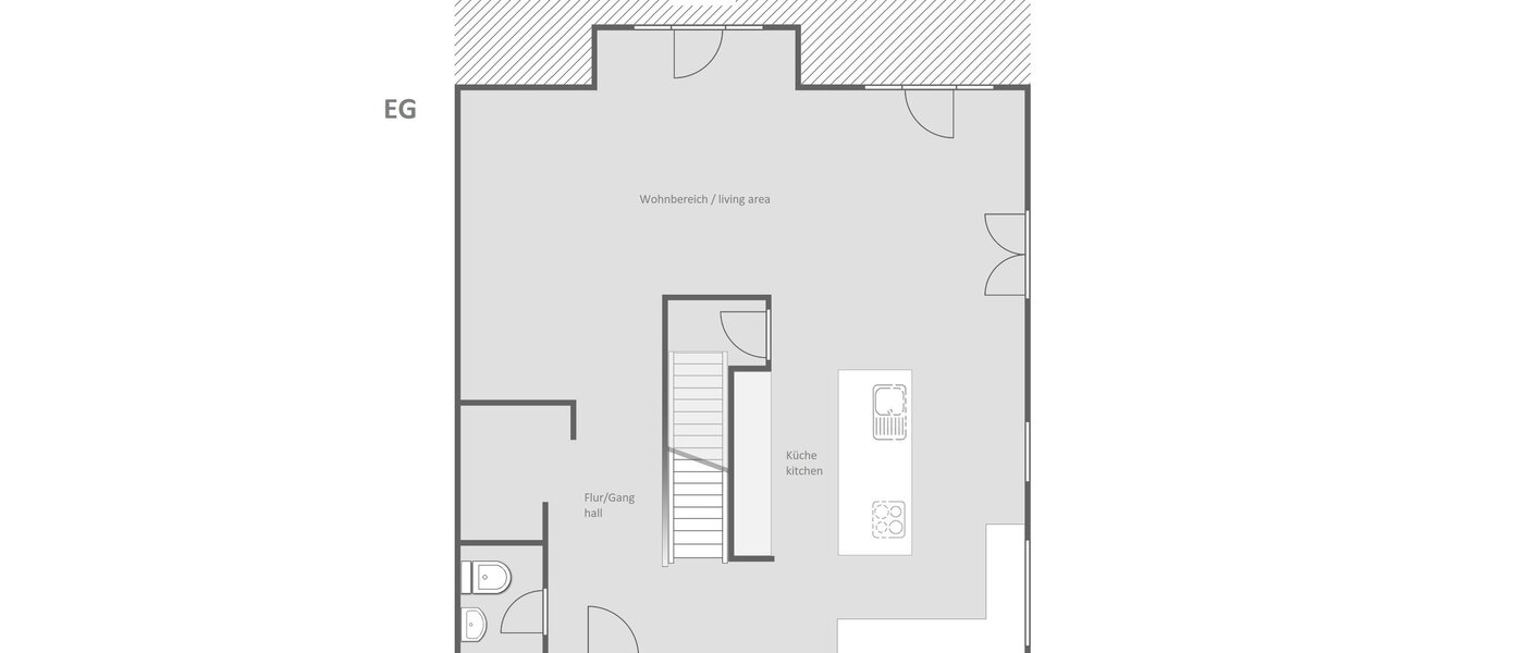
Pokoj
Obývací pokoj / jídelna s posezením a jídelním koutem
1. ložnice s manželskou postelí 180 x 200 cm
2. ložnice s francouzskou postelí 140 x 200 cm
3. ložnice s jedním lůžkem 100 x 200 cm
Šatní skříň
Hobby místnost
Koupelna se sprchou
Koupelna s vanou
WC pro hosty
Floor coverings
Parketové podlahy, Dlážděná podlaha
Vybavení
jako nový, částečně starožitnosti, Smíšené, krásně a světle zařízené, upscale
Kitchen
Vybavená kuchyň částečně otevřená s obývacím prostorem, s oknem, Kombinace chladničky a mrazničky, Myčka nádobí, Indukční varná deska, Sklokeramická varná deska, Elektrická trouba, Odsávací ventilátor, Parní trouba, Trouba s integrovanou mikrovlnnou troubou, Plně automatický kávovar, dinnerware, kitchen utensils and equipment provided
Items
Technická místnost s pračkou
Dva chytré televizory (s připojením k internetu)
including bed linen, towels and blow-dryer
incl. iron, ironing board and vacuum cleaner
closed fireplace
Internet
WLAN
Internetový paušál (s rychlostí až 1 000 Mbit/s)
Náklady zahrnuté v nájemném
Speciální nabídky
Balkon
Terasa
Pohled do zahrady
Velká zahrada
Sklep
Parkování
Přístřešek pro auto se 2 parkovacími místy
Náklady zahrnuté v nájemném
O ceně pronájmu
Včetně.: Vedlejší náklady, Internet, Přístřešek pro auto
Navíc.: Elektřina, Náklady na vytápění, Voda
security deposit
2 months rent
Licenční poplatek za vysílání
Poplatek za vysílání pro veřejnoprávní vysílací organizace. Měsíční koncesionářský poplatek hradí nájemce přímo ARD ZDF Deutschlandradio, Beitragsservice a v současné době činí 18,36 EUR/měsíc - není zahrnut v nájemném, pokud není uvedeno jinak: další informace
Energy Performance Certificate
Year of construction: 2017
Type of Energy Performance Certificate: Bedarfsausweis
Main energy sources: Holzpellets
Energy efficiency rating: B
Final energy demand: 58,00 kWh/(m²*a)
Szilvia Cseresznyes

Szilvia Cseresznyes

Poradce pro pronájem nemovitostí

Haven't found the right flat yet?

Our rental team will be happy to help you with your search. Simply fill out our search request form and we will get back to you as soon as possible.

Submit search inquiry

Umístění nemovitosti

Walchstadter Höhe

Icking

  • good living location
  • very quiet
  • přibližně. 24,5 km jihozápadní z centra
More about the neighborhood
suburban train
Route S7, Station Icking (25 minuty pěšky)

Similar objects

Ploché s 5 Pokoje | Grünwald | 14631
Video
01.02.2026 pro 6-36 měsíce
5 Pokoj
125 m²
Grünwald
3,950
€/Month
Dvojdomek s 5 Pokoje | Mnichov-Lochhausen | 14662
Video
od nynějška pro 12-36 měsíce
5 Pokoj
150 m²
Mnichov-Lochhausen
3,350
€/Month
Dům s 5 Pokoje | Mnichov-Ramersdorf | 14455
Video
od nynějška pro 6-36 měsíce
5 Pokoj
130 m²
Mnichov-Ramersdorf
2,650
€/Month
Rohový řadový dům s 5 Pokoje | Karlsfeld | 14478
Video
od nynějška pro 6 měsíce
5 Pokoj
130 m²
Karlsfeld
2,900
€/Month
Ploché s 1 Pokoj | Unterföhring | 13900
Apartmán se službami
Video
od nynějška pro 1-6 měsíce
1 Pokoj
18 m²
Unterföhring
1,800
€/Month

Frequently asked questions

Our service is free of charge for you as a tenant. After signing the contract, you pay the landlord the monthly rent and a one-off deposit (usually two months' rent).
If you have found a suitable offer on our website or would like us to send you suitable offers, please first fill out our registration form in full. Our consultants will then contact you as soon as possible to discuss the next steps. We would be happy to arrange a viewing appointment on site. Once you have decided on an apartment, we will discuss this with the landlord and draw up the rental agreement once approval has been granted.
The specified rental period is binding. For example, if an apartment is offered for 1 June, it cannot be rented earlier and, as a rule, not significantly later. If your desired rental period differs from the offer, please inform your consultant. If a fixed end date is specified, the apartment cannot be extended. In the case of a variable rental period, slight deviations may be negotiable with the landlord.
Private providers of flats and houses in Munich are subject to a minimum rental period of six months. The city of Munich considers rental periods of less than six months to be misuse of residential space, which is why we only arrange flats and houses for a minimum of six months or longer.
Commercial providers such as serviced apartments, on the other hand, are not allowed to rent for longer than 6 months in many locations. We therefore distinguish between short-stay and long-term offers.
In the Tegernsee region, private providers are also allowed to rent for shorter periods, which means we can offer furnished rentals here for as little as one month.
If you would like to view the property in person, please let us know. If the flat is still rented, our consultants will arrange an appointment with the current tenant. If the flat is already vacant, appointments can usually be arranged at short notice. Please note that the flat is usually rented to the person who makes a binding commitment first. Therefore, please do not plan your appointments too late, as the properties you are interested in may be rented out in the meantime.
Upon request, you can view our properties virtually via video call. On our website, you will find high-quality photos and videos of the property and its surroundings, as well as additional detailed information about each property.
The rental agreement is concluded between the tenant and the landlord. In most cases, the rental agreement is drawn up by Mr. Lodge – in consultation with the tenant and landlord – and forwarded to both parties for signature.
As agreed in the tenancy agreement, the flat must be professionally cleaned before it is returned. When you move out, a commercial final cleaning will be carried out by a specialist company commissioned by the landlord. The costs are based on the amount of work involved and are usually borne by the tenant. The landlord receives the invoice from the cleaning company and offsets the costs against the deposit. Thorough pre-cleaning can reduce the costs of commercial cleaning. Please refer to our checklist for details of what is included in a final cleaning.
Cookie notice
This website uses cookies to personalize content, customize and measure advertising, and provide a safe experience. By clicking the "Allow all and continue" button, you consent to the collection of data via cookies.
Please enable cookies in your browser settings!