за съжаление вече не е наличен
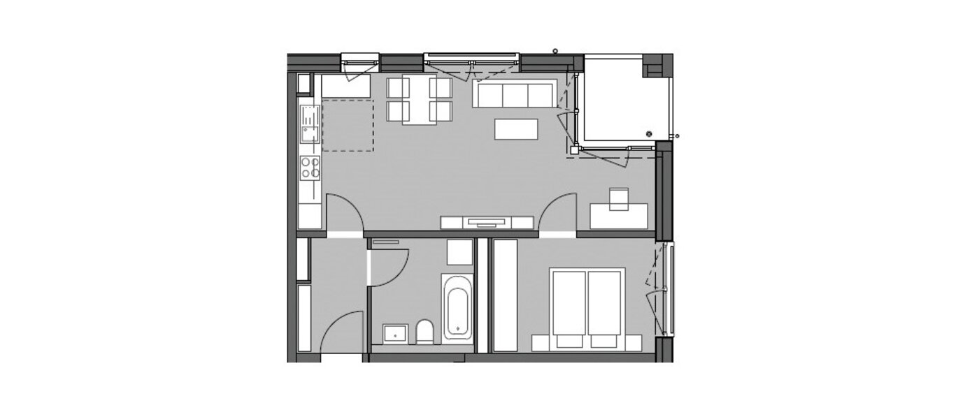
Хубав 2-стаен апартамент под наем с едно паркомясто
Преведено от DeepL
Neighborhood
München Am Hart
Shopping:
всички магазини за ежедневни нужди, Аптека, Месарница, Магазин за цветя, Търговец на дребно на напитки
Храни и напитки:
Ресторанти, Кафене
