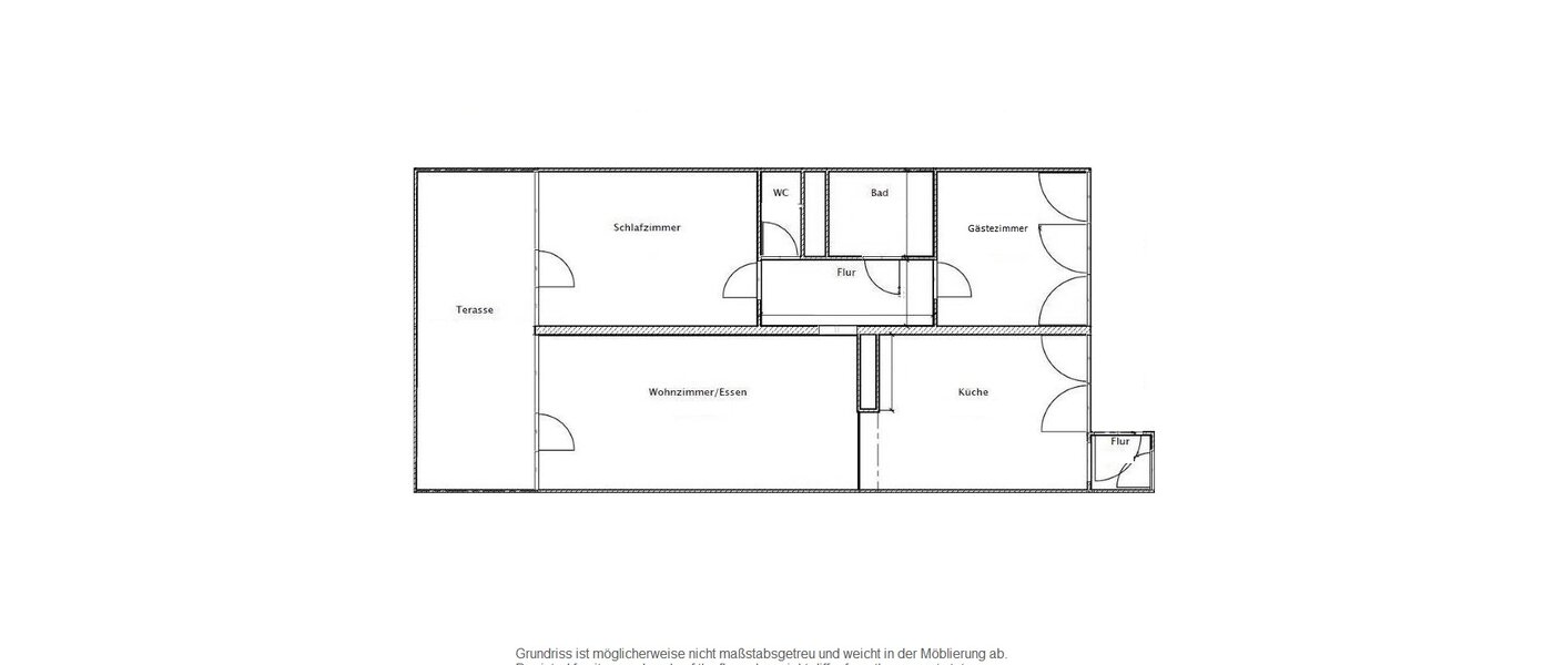
sajnos már nem kapható
Nagyon szépen berendezett Lapos a oldalon. Olympiadorf
Neighborhood
München Olympiadorf
Shopping:
Gyógyszertár, Baker, Biobolt, Ital kiskereskedő, Gyümölcs és zöldséges, Tisztítás, Szupermarket
Étel és ital:
Bárok, Kávézók, Pubok, Pizzériák, Éttermek, Stand-up kávézók
