Am Kapuzinerhölzl
80992 München
80992 München
ID 9984
€ 2.750,-
w tym.: Koszty dodatkowe, Elektryczność, Ogrzewanie, Woda, Internet, Telefon, Garaż
3 Pokój
ok. 89 m²
Podłoga 3
ID 9984
Zapytaj teraz
Dostępne od
01.03.2026 dla 6-36 Miesiące
Minimalny okres wynajmu
6 Miesiące
Number of tenants
odpowiedni dla 3 osób
Opłata za usługę
Brak
Ograniczenia
tylko osoby niepalące, no pets
To piękne, słoneczne mieszkanie z dwoma balkonami przypominającymi tarasy i położone w zielonej okolicy zapewnia wysoką jakość życia.
W ciągu kilku minut można dojść do ogrodu botanicznego, który przechodzi w park pałacowy Nymphenburg i pałac Nymphenburg.
Uwaga:
Przed rozpoczęciem wynajmu sofa zostanie wymieniona na nowy, podobny model.
(stan na listopad 2025 r.)
Sprzęt:
Internet
Telewizja
Hoover
Pralka
Suszarka bębnowa
Zmywarka
Ręczniki
Pościel
Suszarka do włosów
Żelazo
Piwnica
Garaż
Podnoszenie
Balkon
Taras
Information
Podłoga
3rd - Z windą
Rok budowy
2001
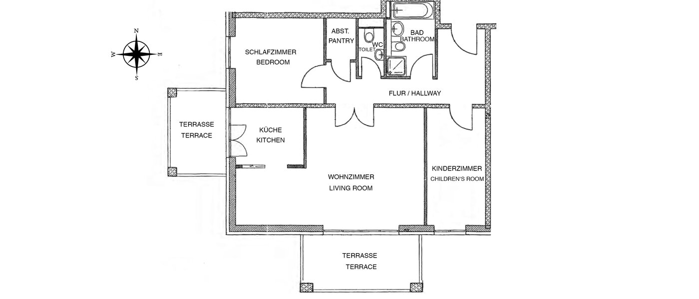
Pokój
Salon / jadalnia z częścią wypoczynkową i zestaw jadalny
1. sypialnia z łóżkiem francuskim 140 x 200 cm
2. sypialnia z dwoma pojedynczymi łóżkami
Łazienka z prysznicem i wanną
WC dla gości
1. sypialnia z łóżkiem francuskim 140 x 200 cm
2. sypialnia z dwoma pojedynczymi łóżkami
Łazienka z prysznicem i wanną
WC dla gości
Floor coverings
Parkiet, Podłoga wyłożona kafelkami
Umeblowanie
częściowo antyki, starsze niż 10 lat, pięknie i jasno urządzone
Kitchen
jak nowy Wyposażona kuchnia, z oknem, Płyta ceramiczna, Wentylator wyciągowy, Piekarnik elektryczny, Mikrofalówka, Zmywarka, Chłodziarko-zamrażarka, Ekspres do kawy w kapsułkach, Czajnik, dinnerware, kitchen utensils and equipment provided
Items
Pralko-suszarka w mieszkaniu
Telewizor z płaskim ekranem
bed linen and towels included
incl. iron, ironing board and vacuum cleaner
Telewizor z płaskim ekranem
bed linen and towels included
incl. iron, ironing board and vacuum cleaner
Internet
WLAN
Zryczałtowana stawka internetowa (do 250 Mbit/s)
Koszty wliczone w czynsz
Zryczałtowana stawka internetowa (do 250 Mbit/s)
Koszty wliczone w czynsz
Promocje
Jasne mieszkanie
Dwa balkony, bardzo ładny, duży balkon od strony południowej, Balkon zachodni
Widok na ogród, Widok na zieleń
Przechowalnia
Dwa balkony, bardzo ładny, duży balkon od strony południowej, Balkon zachodni
Widok na ogród, Widok na zieleń
Przechowalnia
Parking
Parking podziemny (pojedyncze miejsce parkingowe) - więcej informacji: Parking w Monachium
Koszty wliczone w czynsz
Koszty wliczone w czynsz
Informacje o cenie wynajmu
W zestawie.: Koszty dodatkowe, Elektryczność, Koszty ogrzewania, Woda, Internet, Zryczałtowana stawka za telefon (niemiecka sieć stacjonarna), Parking podziemny (pojedyncze miejsce parkingowe)
security deposit
2 months rent
Opłata licencyjna za nadawanie
Opłata radiowo-telewizyjna dla nadawców publicznych. Miesięczna opłata licencyjna jest uiszczana przez najemcę bezpośrednio na rzecz ARD ZDF Deutschlandradio, Beitragsservice i wynosi obecnie 18,36 €/miesiąc - nie jest wliczona w czynsz, chyba że zaznaczono inaczej: więcej informacji
Energy Performance Certificate
Year of construction: 2001
Type of Energy Performance Certificate: Verbrauchsausweis
Main energy sources: Gas
Energy efficiency rating: B
Energy consumption value: 70,30 kWh/(m²*a)
Type of Energy Performance Certificate: Verbrauchsausweis
Main energy sources: Gas
Energy efficiency rating: B
Energy consumption value: 70,30 kWh/(m²*a)
Giulia Fabiani
Konsultant ds. wynajmu nieruchomości
Haven't found the right flat yet?
Our rental team will be happy to help you with your search. Simply fill out our search request form and we will get back to you as soon as possible.
Submit search inquiryLokalizacja nieruchomości
Am Kapuzinerhölzl
München Moosach
- exclusive living location
- w pobliżu parku pałacowego Nymphenburg
- very quiet
- ok. 6,7 km północny zachód z centrum Zentrum
underground
Route U3, Station Moosach (18 minuty pieszo)
tram
Routes 17 oraz N17, Station Botanischer Garten (9 minuty pieszo)
bus
Route 51, Station Schragenhofstraße (2 minuty pieszo)
Routes 164, 165, 51 oraz N78, Station Skagerrakstraße (5 minuty pieszo)
Routes 164, 165, 51 oraz N78, Station Skagerrakstraße (5 minuty pieszo)
Similar objects
Frequently asked questions
Our service is free of charge for you as a tenant. After signing the contract, you pay the landlord the monthly rent and a one-off deposit (usually two months' rent).
If you have found a suitable offer on our website or would like us to send you suitable offers, please first fill out our registration form in full. Our consultants will then contact you as soon as possible to discuss the next steps. We would be happy to arrange a viewing appointment on site. Once you have decided on an apartment, we will discuss this with the landlord and draw up the rental agreement once approval has been granted.
The specified rental period is binding. For example, if an apartment is offered for 1 June, it cannot be rented earlier and, as a rule, not significantly later. If your desired rental period differs from the offer, please inform your consultant. If a fixed end date is specified, the apartment cannot be extended. In the case of a variable rental period, slight deviations may be negotiable with the landlord.
Private providers of flats and houses in Munich are subject to a minimum rental period of six months. The city of Munich considers rental periods of less than six months to be misuse of residential space, which is why we only arrange flats and houses for a minimum of six months or longer.
Commercial providers such as serviced apartments, on the other hand, are not allowed to rent for longer than 6 months in many locations. We therefore distinguish between short-stay and long-term offers.
In the Tegernsee region, private providers are also allowed to rent for shorter periods, which means we can offer furnished rentals here for as little as one month.
Commercial providers such as serviced apartments, on the other hand, are not allowed to rent for longer than 6 months in many locations. We therefore distinguish between short-stay and long-term offers.
In the Tegernsee region, private providers are also allowed to rent for shorter periods, which means we can offer furnished rentals here for as little as one month.
If you would like to view the property in person, please let us know. If the flat is still rented, our consultants will arrange an appointment with the current tenant. If the flat is already vacant, appointments can usually be arranged at short notice. Please note that the flat is usually rented to the person who makes a binding commitment first. Therefore, please do not plan your appointments too late, as the properties you are interested in may be rented out in the meantime.
Upon request, you can view our properties virtually via video call. On our website, you will find high-quality photos and videos of the property and its surroundings, as well as additional detailed information about each property.
The rental agreement is concluded between the tenant and the landlord. In most cases, the rental agreement is drawn up by Mr. Lodge – in consultation with the tenant and landlord – and forwarded to both parties for signature.
As agreed in the tenancy agreement, the flat must be professionally cleaned before it is returned. When you move out, a commercial final cleaning will be carried out by a specialist company commissioned by the landlord. The costs are based on the amount of work involved and are usually borne by the tenant. The landlord receives the invoice from the cleaning company and offsets the costs against the deposit. Thorough pre-cleaning can reduce the costs of commercial cleaning. Please refer to our checklist for details of what is included in a final cleaning.