niestety już niedostępne
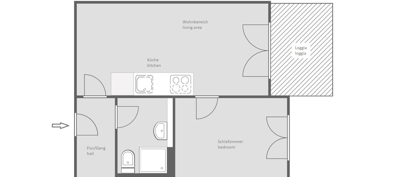
Nowoczesny dwupokojowy apartament w nowym budynku, oddany do użytku w 2023 r.
Przetłumaczone z DeepL
Neighborhood
München Neuhausen
Shopping:
Apteka, Baker, Rzeźnik, Apteka, Sklep ekologiczny, Butiki, Sprzedawca detaliczny napojów, Domy towarowe, Owoce i warzywniak, Kwiaciarnia, Sklep ze zdrową żywnością, Czyszczenie, Supermarket, Pralnia, Rynek tygodniowy
Żywność i napoje:
Restauracje, Pizzerie, Kawiarnie, Kawiarnie typu stand-up, Bary, Ogródki piwne, Puby, Lodziarnia, Kino
